5148 Vincent Avenue South Minneapolis, MN 55410
Home
(current)
Gallery
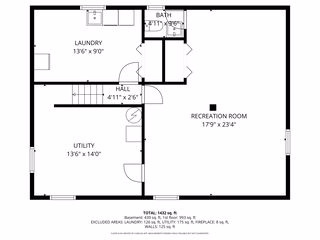
Floor Plan
5148 Vincent Avenue South
Minneapolis, MN 55410
5148 Vincent Avenue South
Minneapolis, MN 55410
Image Gallery
Play Slideshow
Floor Plan