10027 Chowen Avenue South Bloomington, MN 55431
Home
(current)
Gallery
3D Tour
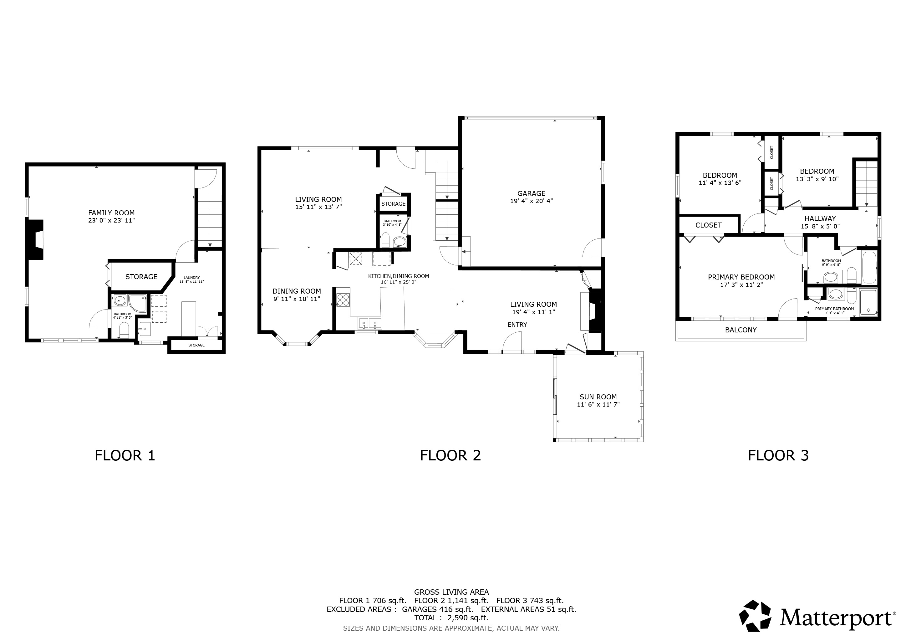
Floor Plan
10027 Chowen Avenue South
Bloomington, MN 55431
10027 Chowen Avenue South
Bloomington, MN 55431
Image Gallery
Play Slideshow
3D Tour
Floor Plan