4730 Timber Ridge Place Minnetonka, MN 55345
Home
(current)
Gallery
3D Tour
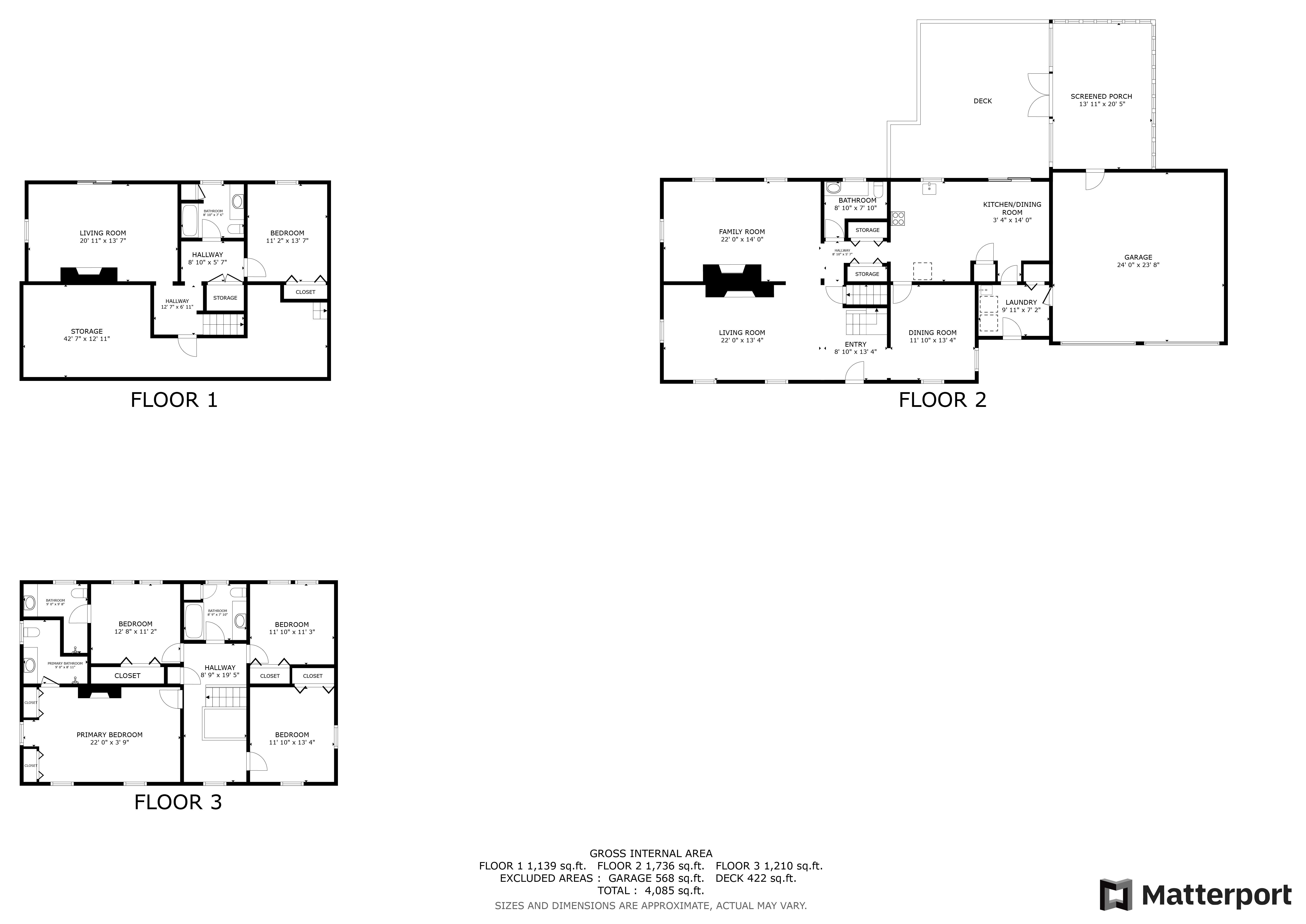
Floor Plan
4730 Timber Ridge Place
Minnetonka, MN 55345
4730 Timber Ridge Place
Minnetonka, MN 55345
Image Gallery
Play Slideshow
Show All 66 Photos
3D Tour
Floor Plan