305 Harbor Lane Shoreview, MN 55126
Home
(current)
Gallery
3D Tour
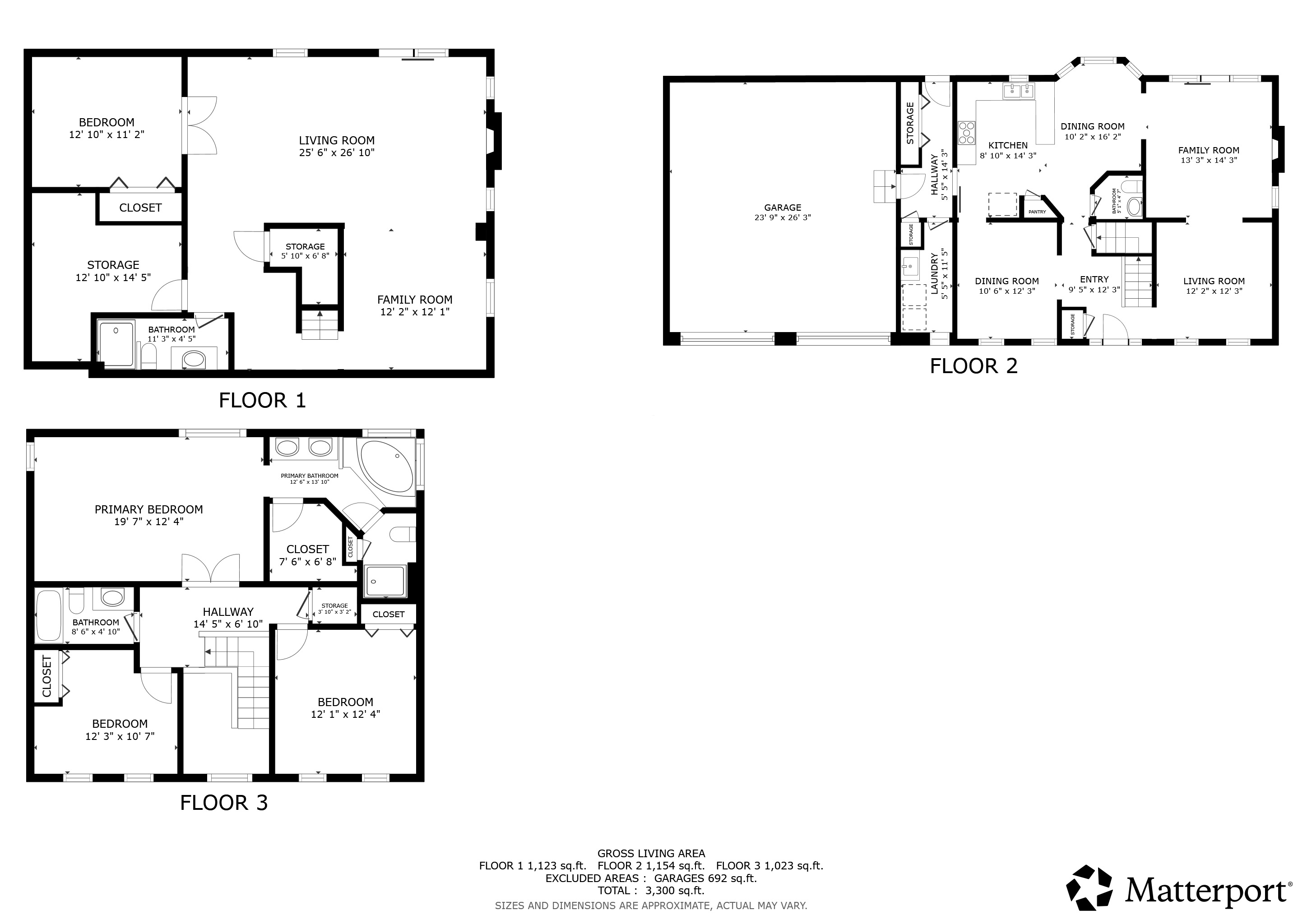
Floor Plan
305 Harbor Lane
Shoreview, MN 55126
305 Harbor Lane
Shoreview, MN 55126
Image Gallery
Play Slideshow
Show All 71 Photos
3D Tour
Floor Plan