2641 Kyle Avenue North Minneapolis, MN 55422
Home
(current)
Gallery
3D Tour
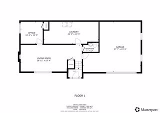
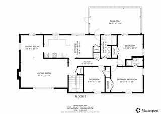
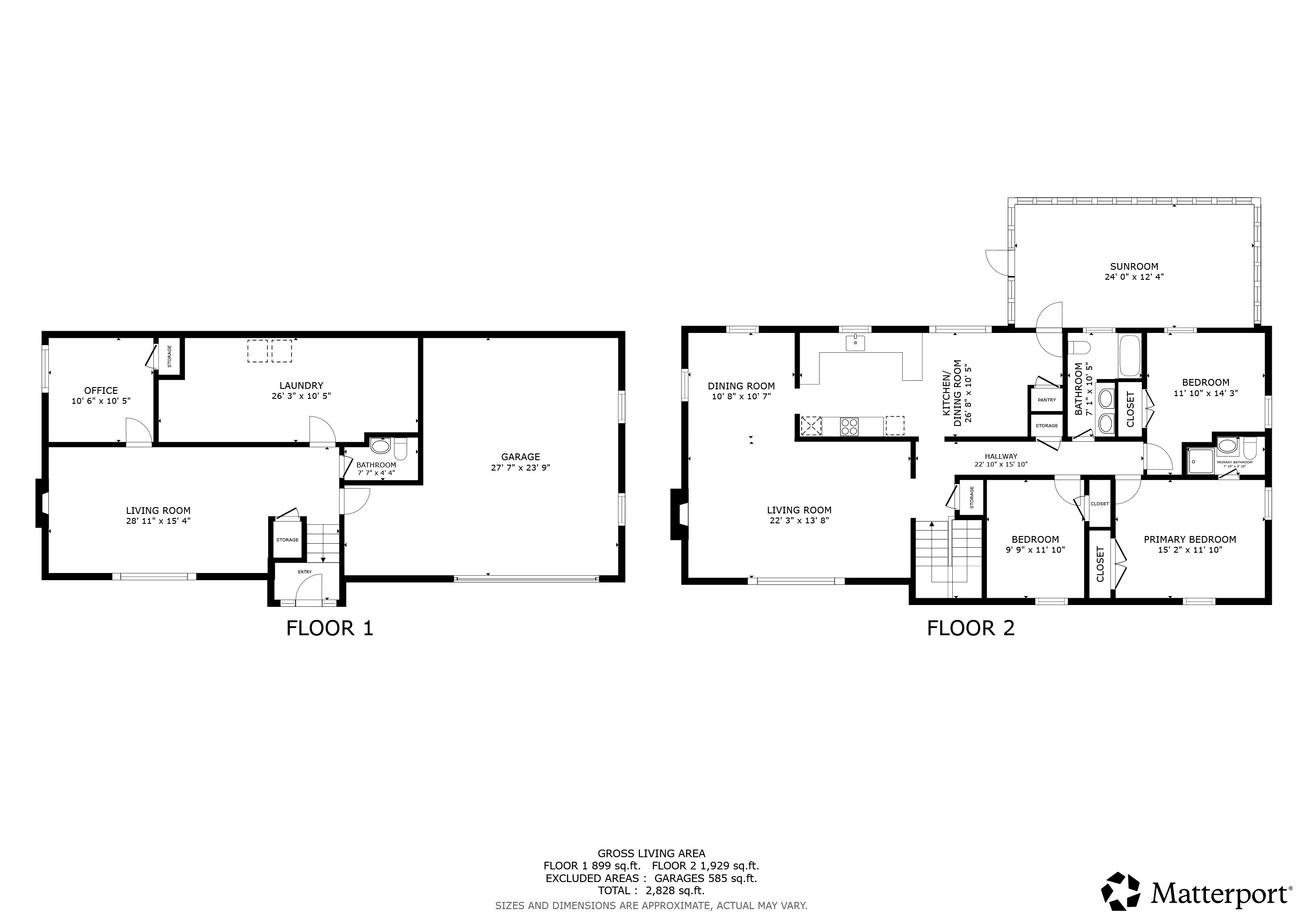
Floor Plan
2641 Kyle Avenue North
Minneapolis, MN 55422
2641 Kyle Avenue North
Minneapolis, MN 55422
Image Gallery
Play Slideshow
3D Tour
Floor Plan