3742 Grand Avenue South Minneapolis, MN 55409
Home
(current)
Gallery
3D Tour
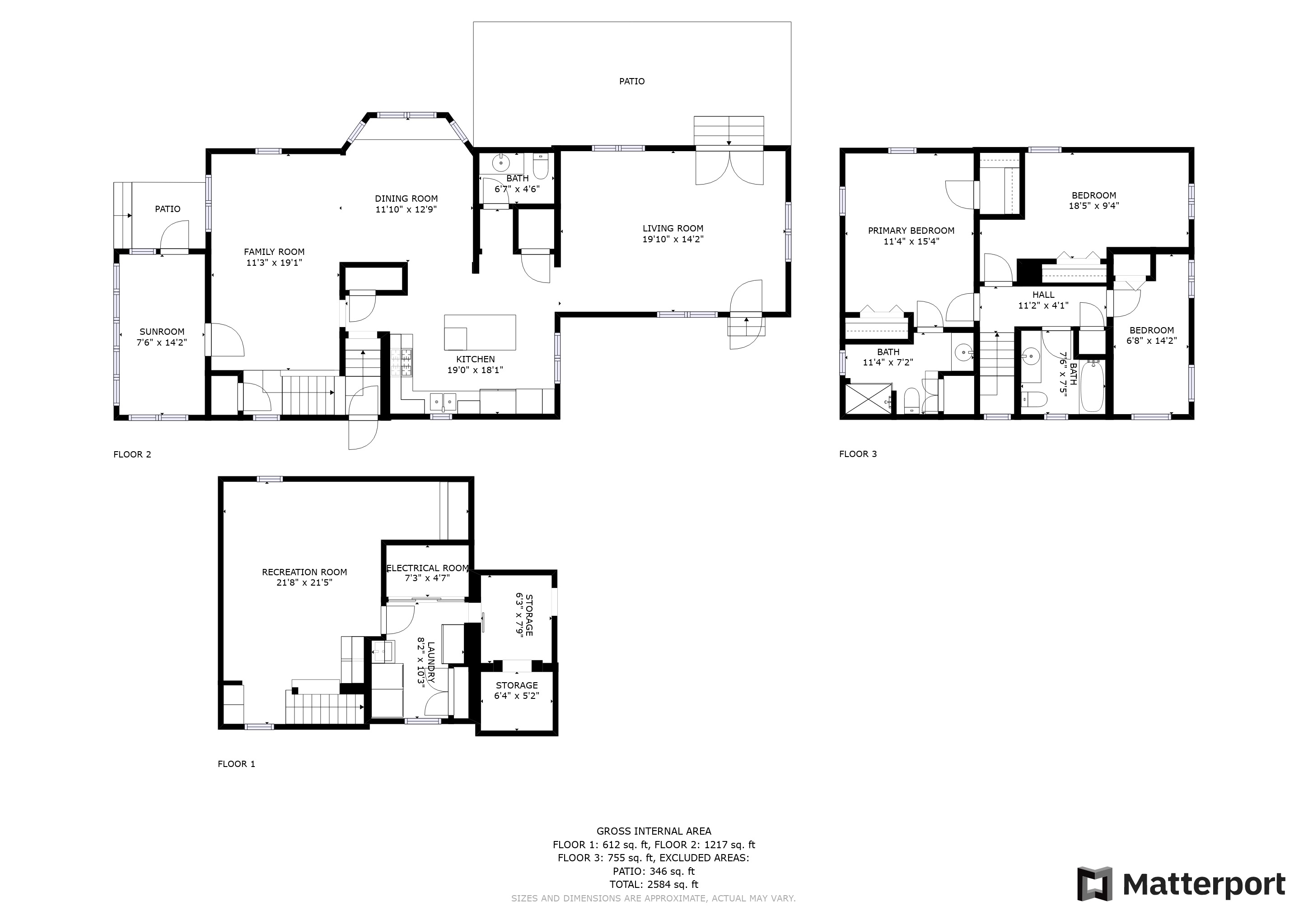
Floor Plan
3742 Grand Avenue South
Minneapolis, MN 55409
3742 Grand Avenue South
Minneapolis, MN 55409
Image Gallery
Play Slideshow
3D Tour
Floor Plan