2843 James Avenue South Minneapolis, MN 55408
Home
(current)
Gallery
3D Tour
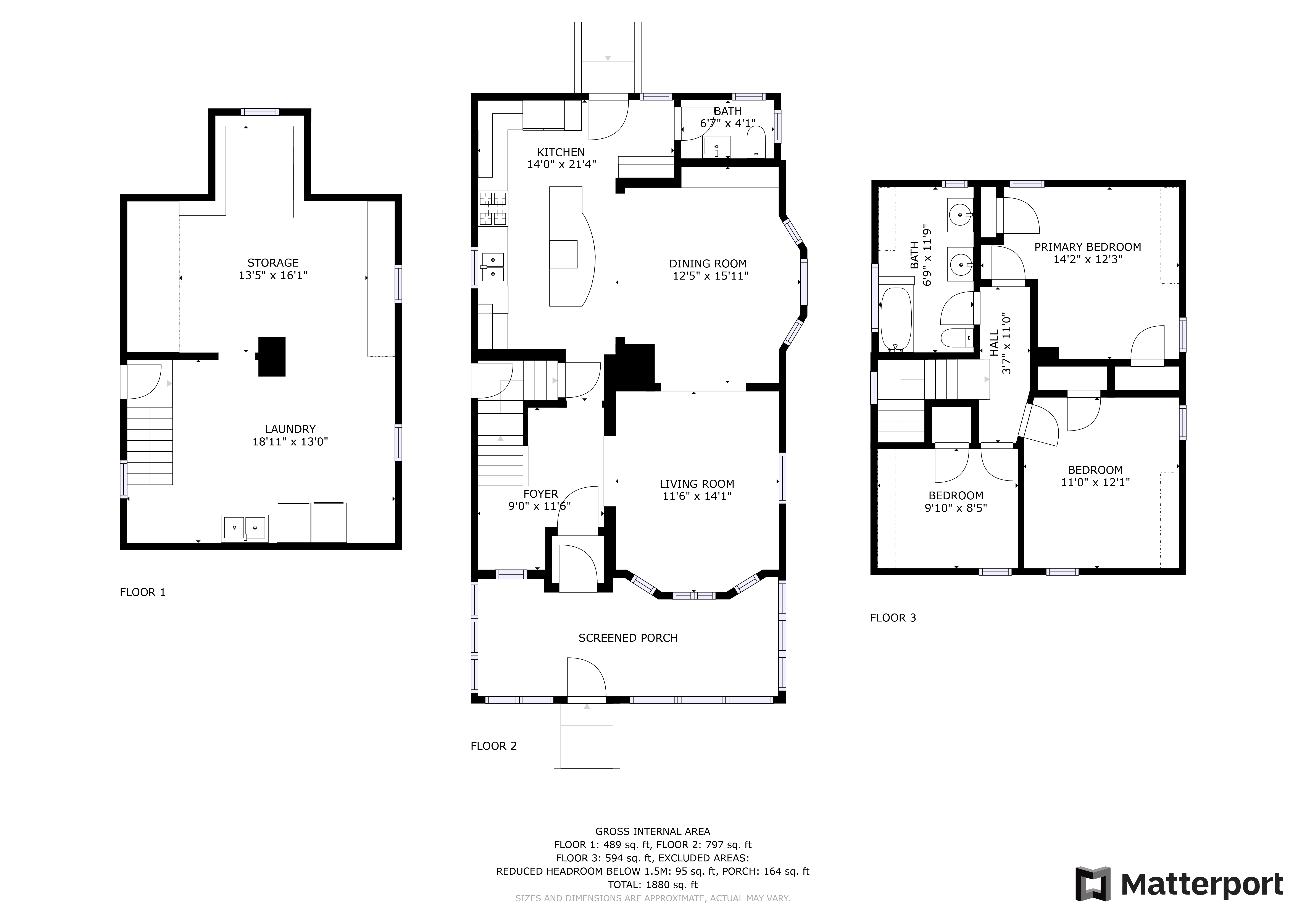
Floor Plan
2843 James Avenue South
Minneapolis, MN 55408
2843 James Avenue South
Minneapolis, MN 55408
Image Gallery
Play Slideshow
3D Tour
Floor Plan