619 Butternut Street South Elmwood, WI 54740
Home
(current)
Gallery
3D Tour
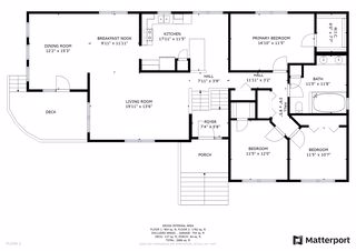
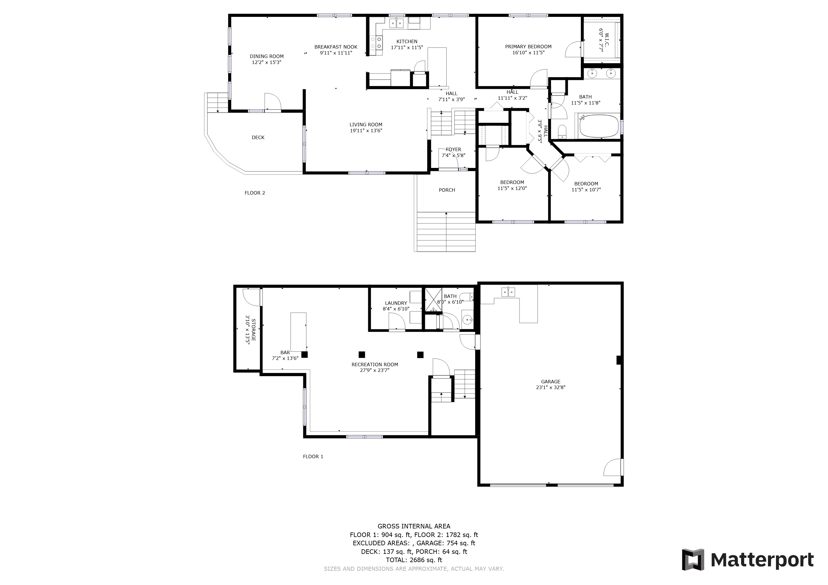
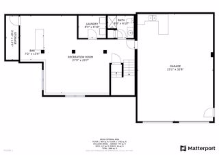
Floor Plan
619 Butternut Street South
Elmwood, WI 54740
619 Butternut Street South
Elmwood, WI 54740
Image Gallery
Play Slideshow
3D Tour
Floor Plan