4000 North Shore Drive
Mound, MN 55364

4000 North Shore Drive
Mound, MN 55364

View Gallery


Presented By


3D Tour


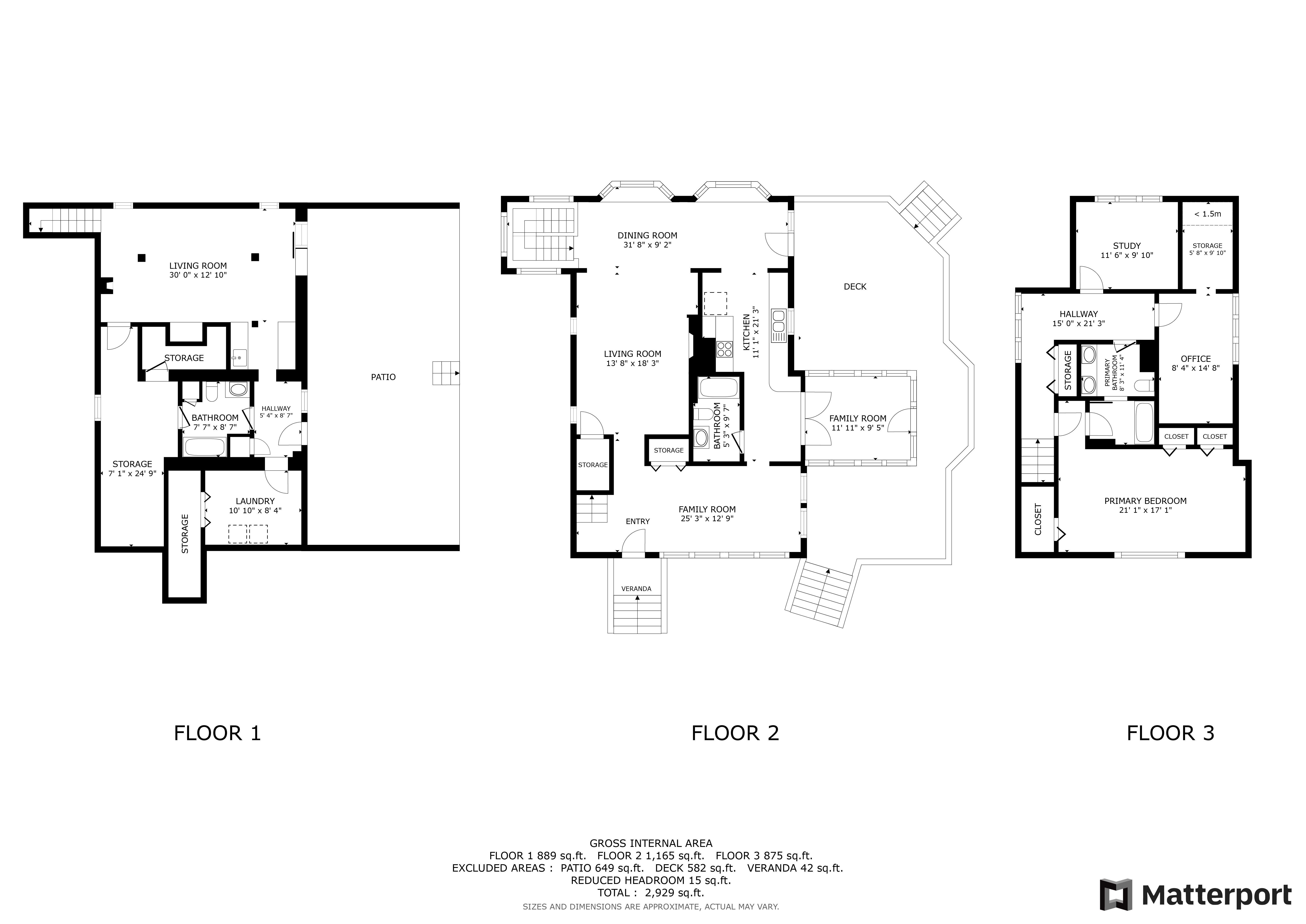
Floor Plan