45/47 20th Avenue North 45/47
Hopkins, MN 55343

45/47 20th Avenue North 45/47
Hopkins, MN 55343

View Gallery

Property Details

Type: 
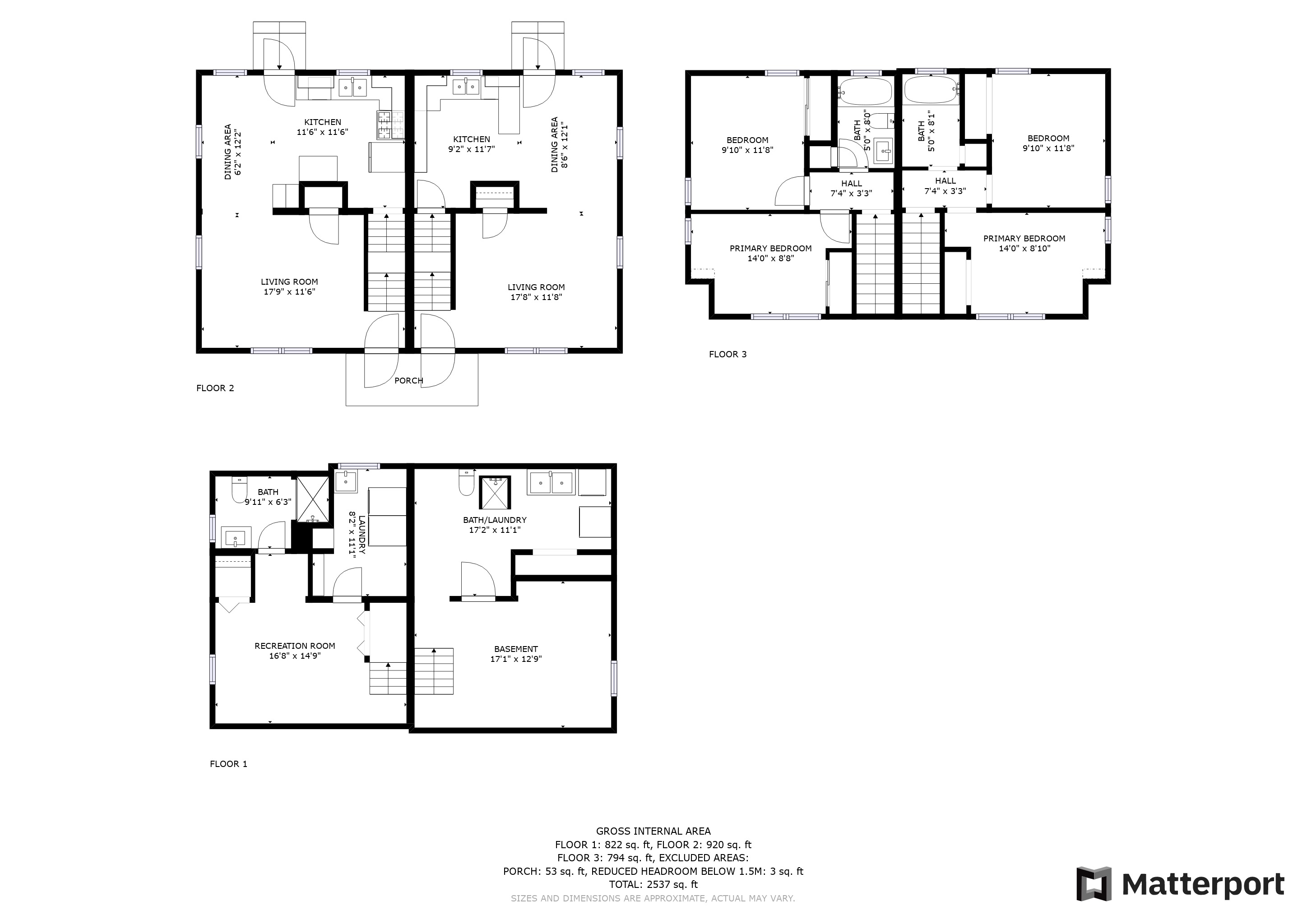
Duplex Side X Side

Bedrooms: 
2 each

Bathrooms: 
2 each

Square Feet: 
1,269 each

Garage: 
4 car

Price: 
$495,000

MLS: 
6438110

School Dist.: 
270 - Hopkins

Lot Size: 
.18 Acres

Year Built: 
1960



Presented By

Real Estate Agent Name

Laurie Bremer

Real Estate Agent Phone

952-210-9736

Real Estate Agent Email

laurie@fazhomes.com

Real Estate Agent Website

www.fazhomes.com/laurie-bremer/

Real Estate Company

Fazendin Realtors


3D Tour


Floor Plan