3325 West 32nd Street Minneapolis, MN 55416
Home
(current)
Gallery
3D Tour
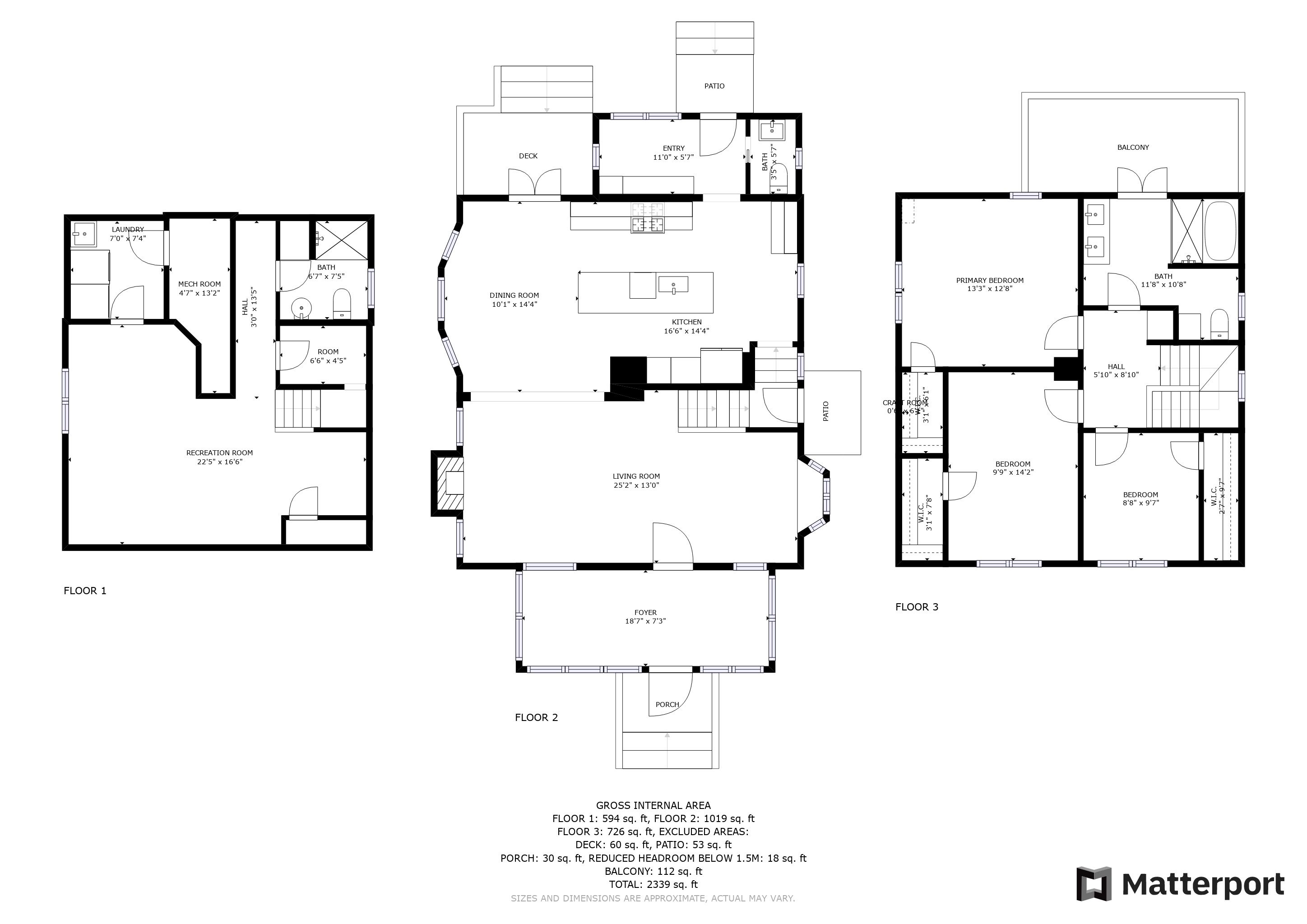
Floor Plan
3325 West 32nd Street
Minneapolis, MN 55416
3325 West 32nd Street
Minneapolis, MN 55416
Image Gallery
Play Slideshow
3D Tour
Floor Plan