2732 Georgia Avenue South Minneapolis, MN 55426
Home
(current)
Gallery
3D Tour
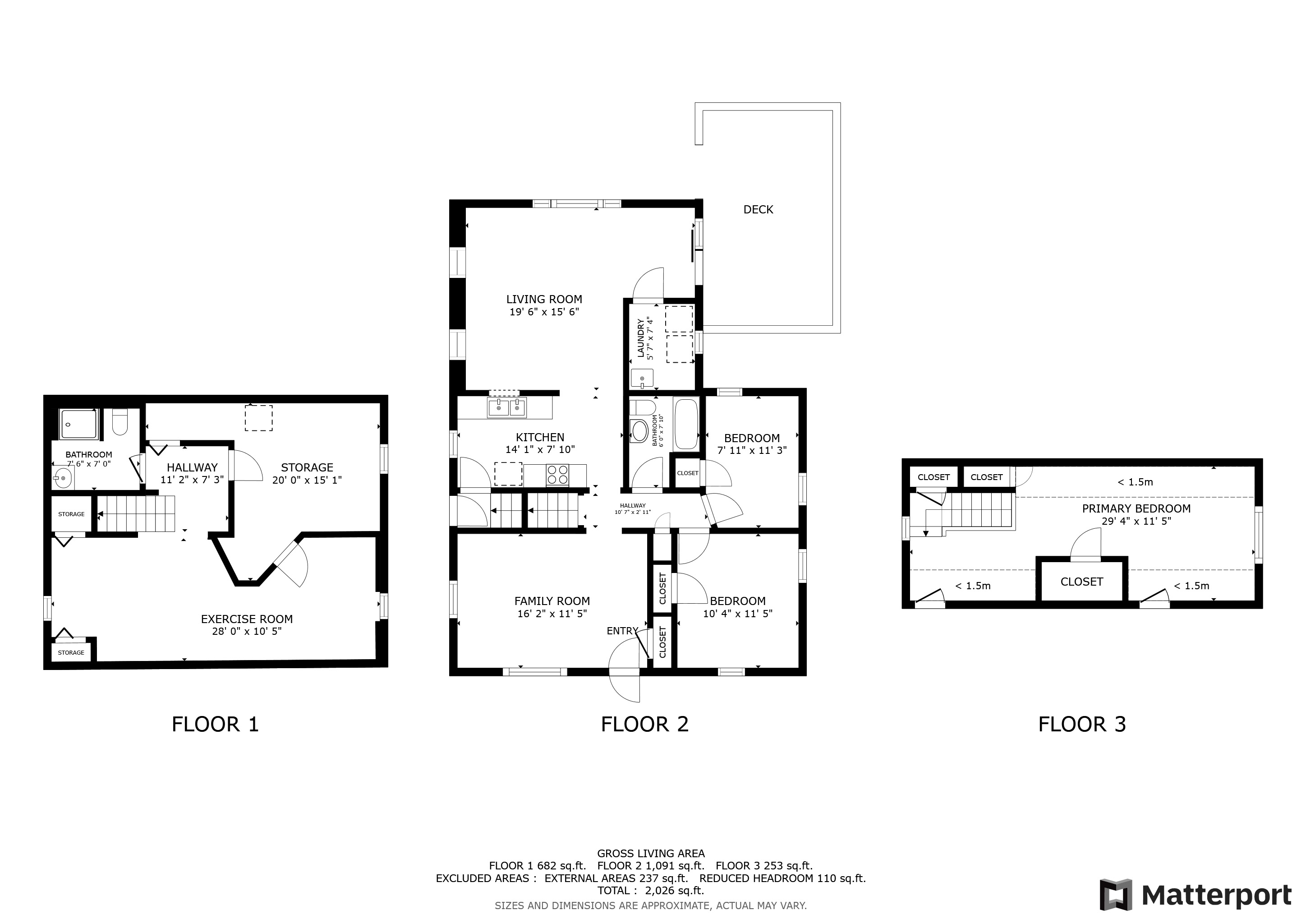
Floor Plan
2732 Georgia Avenue South
Minneapolis, MN 55426
2732 Georgia Avenue South
Minneapolis, MN 55426
Image Gallery
Play Slideshow
3D Tour
Floor Plan