4872 Hanover Road
Mound, MN 55364

4872 Hanover Road
Mound, MN 55364

View Gallery

Property Details

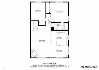
Nicely maintained and updated Mound split level home on a corner lot just blocks away from Phelps Bay and is in the Westonka School district.

This 4 bedroom, 2 bath home features 2 bedrooms and a full bath on the upper level, and an open floor plan that includes a spacious eat-in kitchen with bamboo floors, granite countertops, tile backsplash and updated appliances, a dining room, and a living room with a wood burning fireplace.

The lower level includes 2 additional bedrooms, a 3/4 bath, large family room and a laundry room. An oversized 2 car garage is attached and has abundant storage.

Recent updates include a newer roof (2017), exterior painting (2018), new water heater (2024), new water softener (2024), and new AC (2018).

Offered at $360,000



Presented By

Real Estate Agent Name

Christian Klempp

Real Estate Agent Phone

(612) 669-1358

Real Estate Agent Email

Christian.Klempp@Compass.com

Real Estate Company

COMPASS

Real Estate Advisor

GRI, CRS, RENE, SRS, PSA, ABR, GREEN, e-PRO, RSPS, SFR

View My Other Listings


3D Tour


Floor Plan