2747 Grand Street Northeast Minneapolis, MN 55418
Home
(current)
Gallery
3D Tour
Floor Plan
2747 Grand Street Northeast
Minneapolis, MN 55418
2747 Grand Street Northeast
Minneapolis, MN 55418
Image Gallery
Play Slideshow
3D Tour
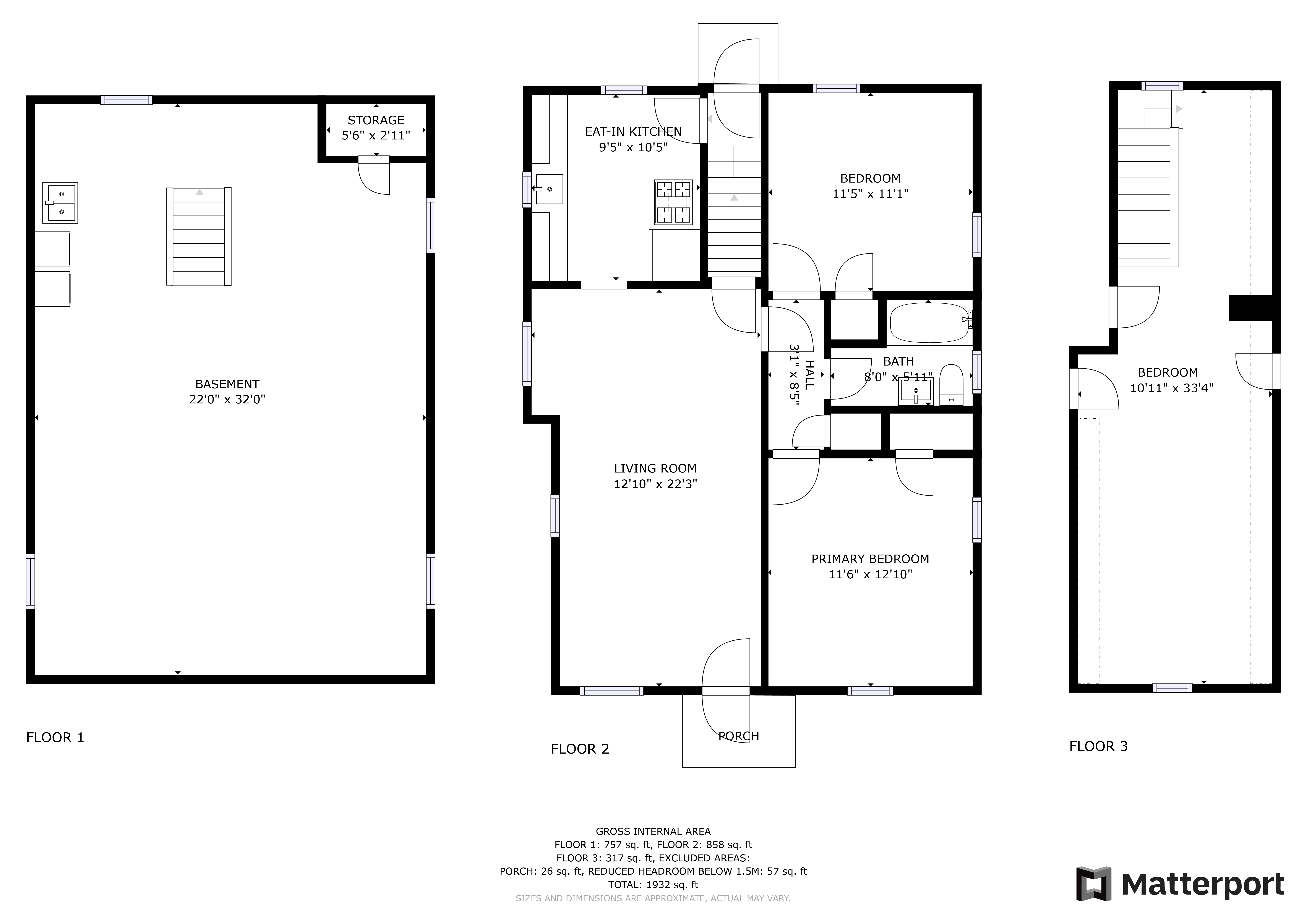
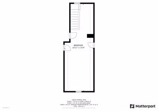
Floor Plan