2640 Boone Avenue South
St. Louis Park, MN 55426

2640 Boone Avenue South
St. Louis Park, MN 55426

View Gallery


Presented By


3D Tour


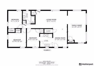
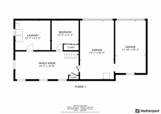
Floor Plan