4030 South 39th Avenue Minneapolis, MN 55406
Home
(current)
Gallery
3D Tour
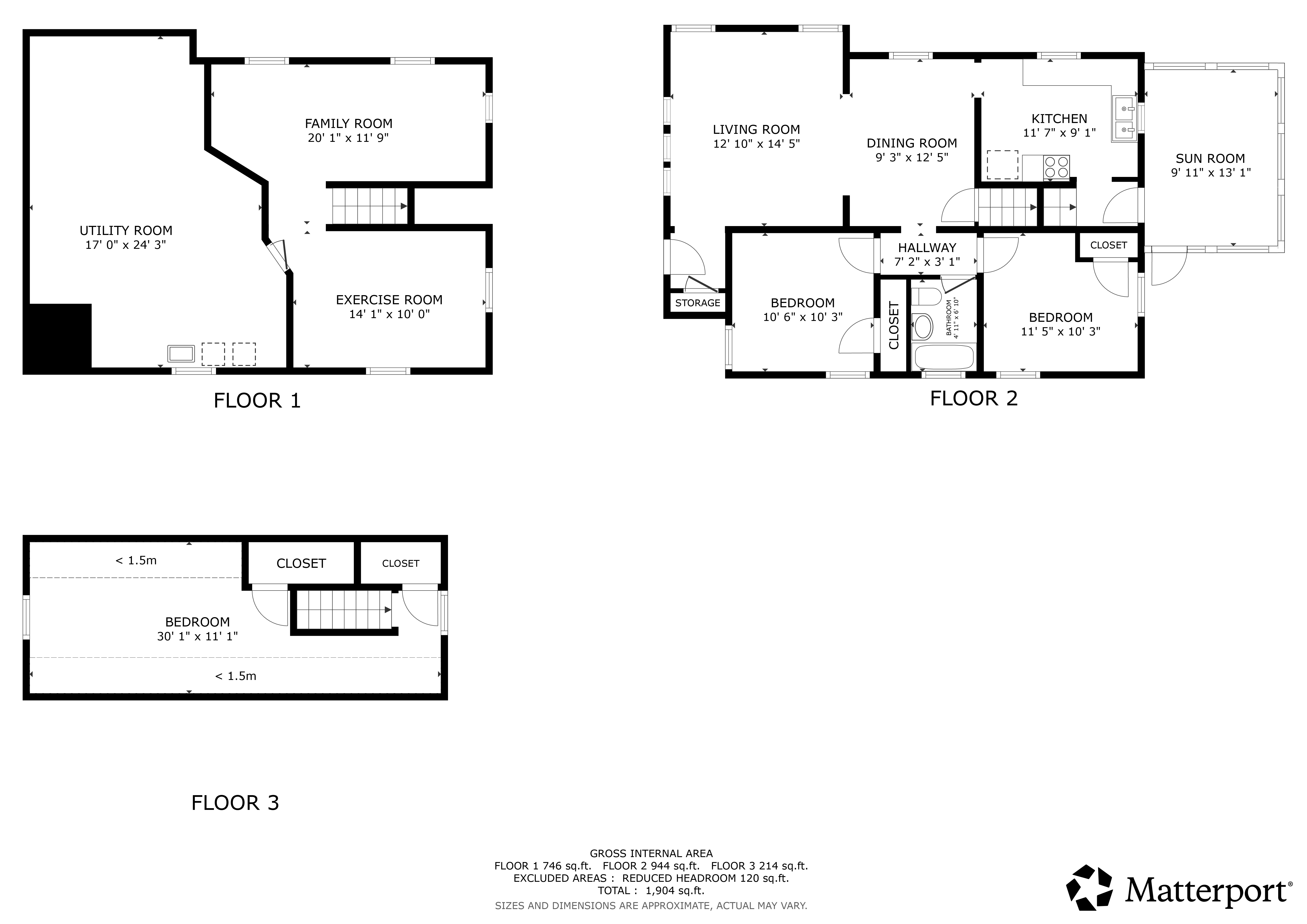
Floor Plan
4030 South 39th Avenue
Minneapolis, MN 55406
4030 South 39th Avenue
Minneapolis, MN 55406
Image Gallery
Play Slideshow
Show All 61 Photos
3D Tour
Floor Plan