3319 Columbus Avenue South Minneapolis, MN 55407
Home
(current)
Gallery
3D Tour
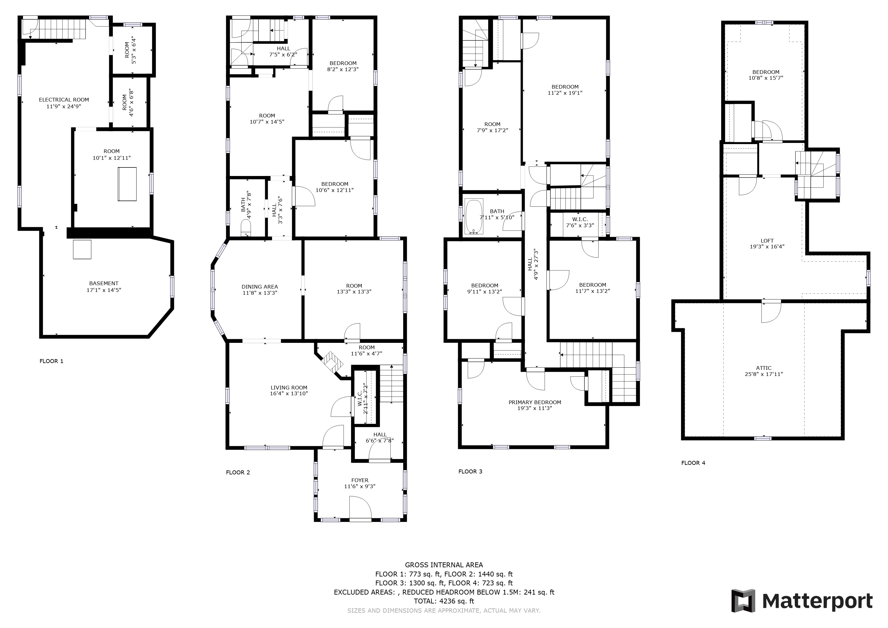
Floor Plan
3319 Columbus Avenue South
Minneapolis, MN 55407
3319 Columbus Avenue South
Minneapolis, MN 55407
Image Gallery
Play Slideshow
Show All 63 Photos
3D Tour
Floor Plan