1464 Kentucky Avenue South Minneapolis, MN 55426
Home
(current)
Gallery
3D Tour
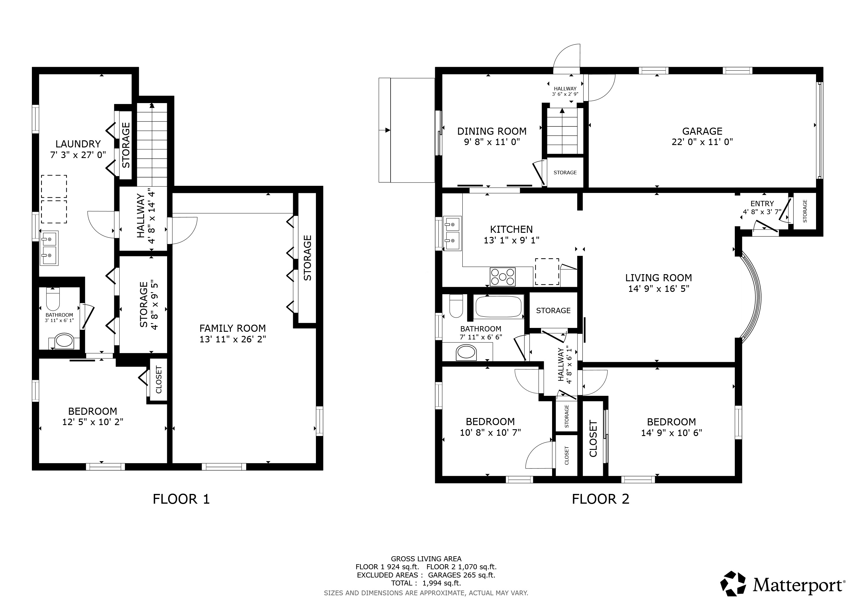
Floor Plan
1464 Kentucky Avenue South
Minneapolis, MN 55426
1464 Kentucky Avenue South
Minneapolis, MN 55426
Image Gallery
Play Slideshow
3D Tour
Floor Plan