3005 Quaker Lane North
Plymouth, MN 55441

3005 Quaker Lane North
Plymouth, MN 55441

View Gallery


Presented By


3D Tour


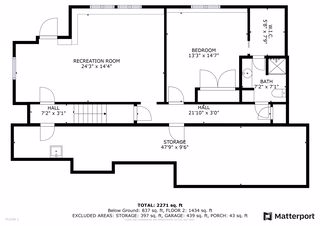
Floor Plan