18623 Jackson Street Northeast East Bethel, MN 55011
Home
(current)
Gallery
3D Tour
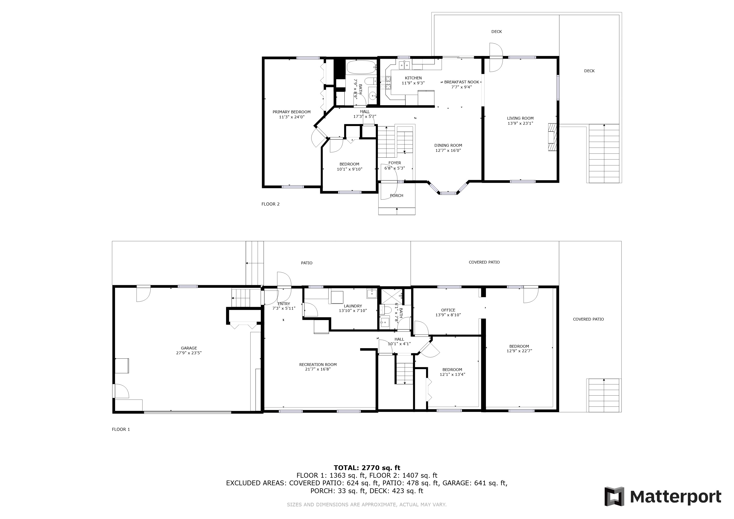
Floor Plan
18623 Jackson Street Northeast
East Bethel, MN 55011
18623 Jackson Street Northeast
East Bethel, MN 55011
Image Gallery
Play Slideshow
3D Tour
Floor Plan