4348 30th Avenue S.

4348 30th Avenue S.

View Gallery

Property Details

Charming South Minneapolis bungalow in the highly sought-after Ericcson neighborhood - just blocks away from Lake Nokomis and Lake Hiawatha!

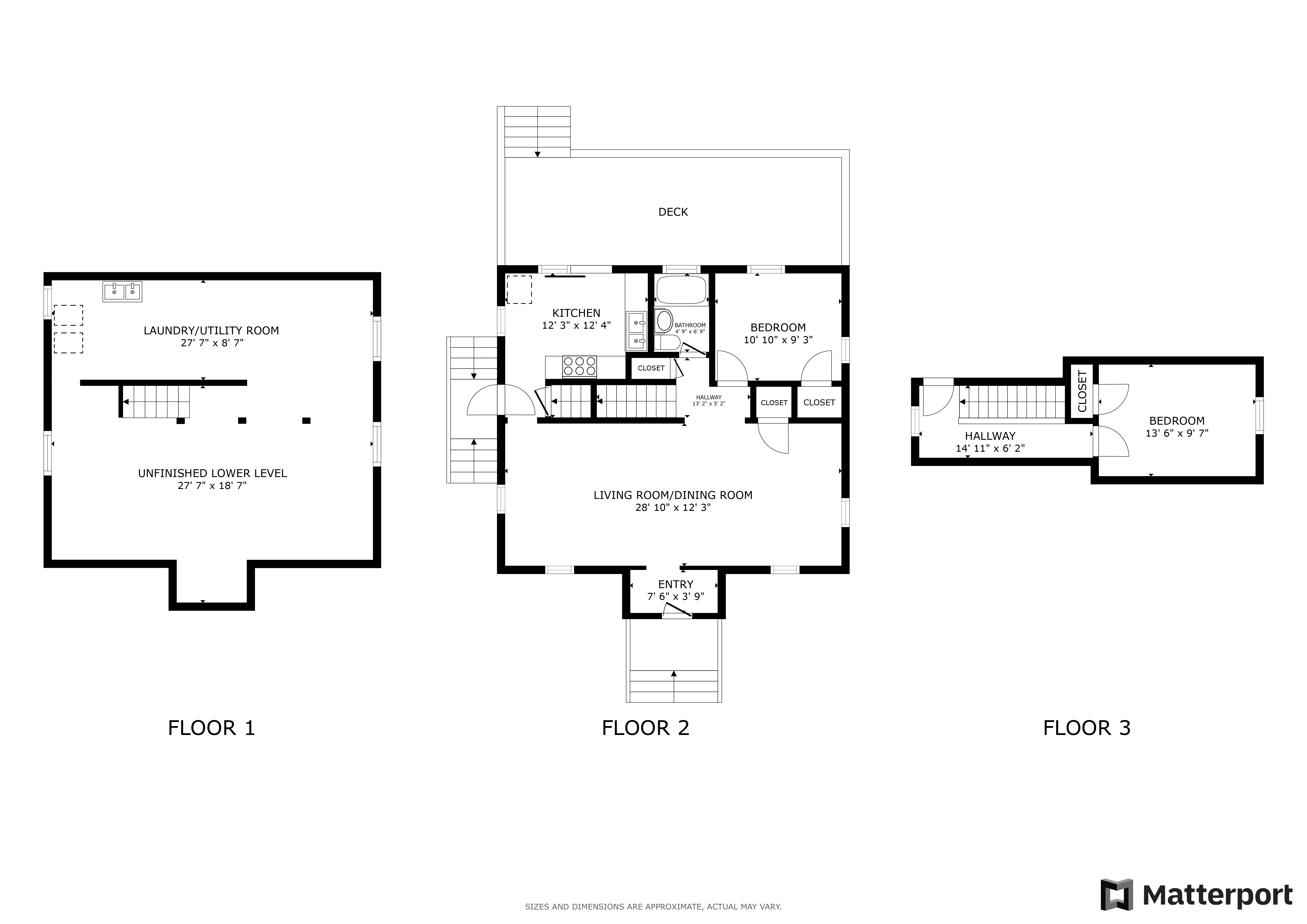
Beautifully updated, this light-filled home boasts original red oak hardwood floors, freshly painted interiors, and newer windows. Spacious living room & dining room with plaster ceiling detail and picture rail hanger. The main floor also includes a full bathroom, bedroom, 3 closets, & nice sized kitchen with birch veneer cabinets and newer appliances. Upstairs is the primary bedroom and generous attic storage rooms. New light fixtures throughout. Enjoy hosting friends for a BBQ on the massive backyard deck, overlooking the nice flat backyard with new landscaping, raised garden, pergola and fire pit. The garage is oversized with a door that was replaced in 2018.

So many home improvements have been made to this home - new roof, siding, gutters, window wraps, storm doors and metal awnings were all done within the last year or so. Windows replaced in 2016-2017. You'll be able to increase the value of the home by finishing the clean lower level to your liking - Much of the work has already been done with concrete block foundation replaced in 2000, basement insulation, and electrical - all ready to be finished.

This home is centrally located on a quiet tree-lined street with many cafes, local businesses or breweries nearby. Enjoy the close proximity to parks (with playgrounds, tennis/pickleball courts, and walking paths) and golf course around Lake Hiawatha and Minnehaha Falls. Located in the highly rated G2 Minneapolis School District (Roosevelt High School, Sanford Middle School, and Northrop Elementary School)

This well cared for home is in excellent shape and turn key ready! Home Warranty offered. Hurry!

MLS: 
6533796

List Price: 
$350,000

Year Built: 
1945

School District: 
Minneapolis (G2 Area)

Bedrooms: 
2 (main floor and upstairs)

Bathrooms: 
1 (main floor)

Finished Square Feet: 
984 Square Feet

Garage: 
1 car (oversized 14' x 20')

2024 Taxes: 
$4,097

Unfinished Lower Level: 
683 Square Feet



Presented By

Real Estate Agent Name

Jim Vandervelde

Real Estate Agent Phone

952-212-6542

Real Estate Agent Email

jimvandervelde@edinarealty.com

Real Estate Agent Website

www.jimvandervelde.com

Real Estate Company

Edina Realty

Jim Vandervelde is your trusted neighborhood Realtor for the Southwest Metro - Named to the Edina Realty Crystal Circle and a Minneapolis/St. Paul Magazine Super Real Estate Agent 2021-2024.

View My Other Listings


3D Tour


Floor Plan