3812 Park Lane Spring Park, MN 55384
Home
(current)
Gallery
3D Tour
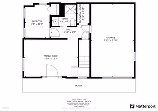
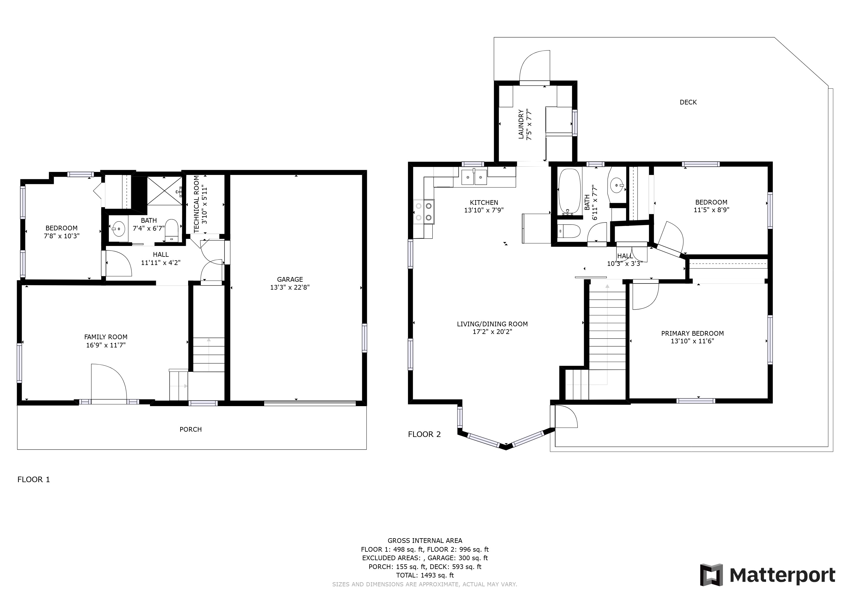
Floor Plan
3812 Park Lane
Spring Park, MN 55384
3812 Park Lane
Spring Park, MN 55384
Image Gallery
Play Slideshow
3D Tour
Floor Plan