4043 Emerson Ave N
Minneapolis, MN 55412

4043 Emerson Ave N
Minneapolis, MN 55412

View Gallery


Presented By


3D Tour


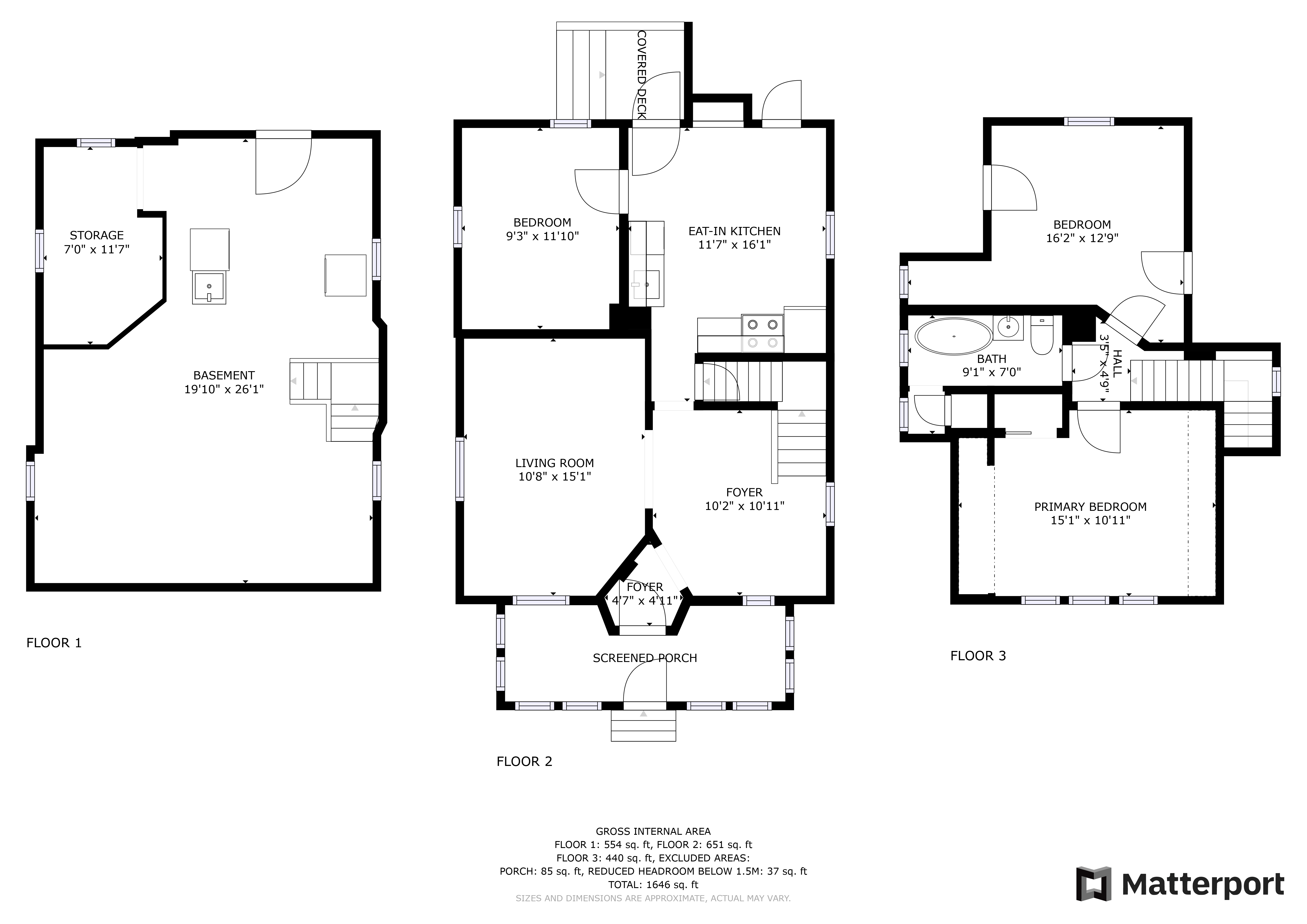
Floor Plan