1299 Randolph Ave - Saint Paul

1299 Randolph Ave - Saint Paul

View Gallery

Property Details

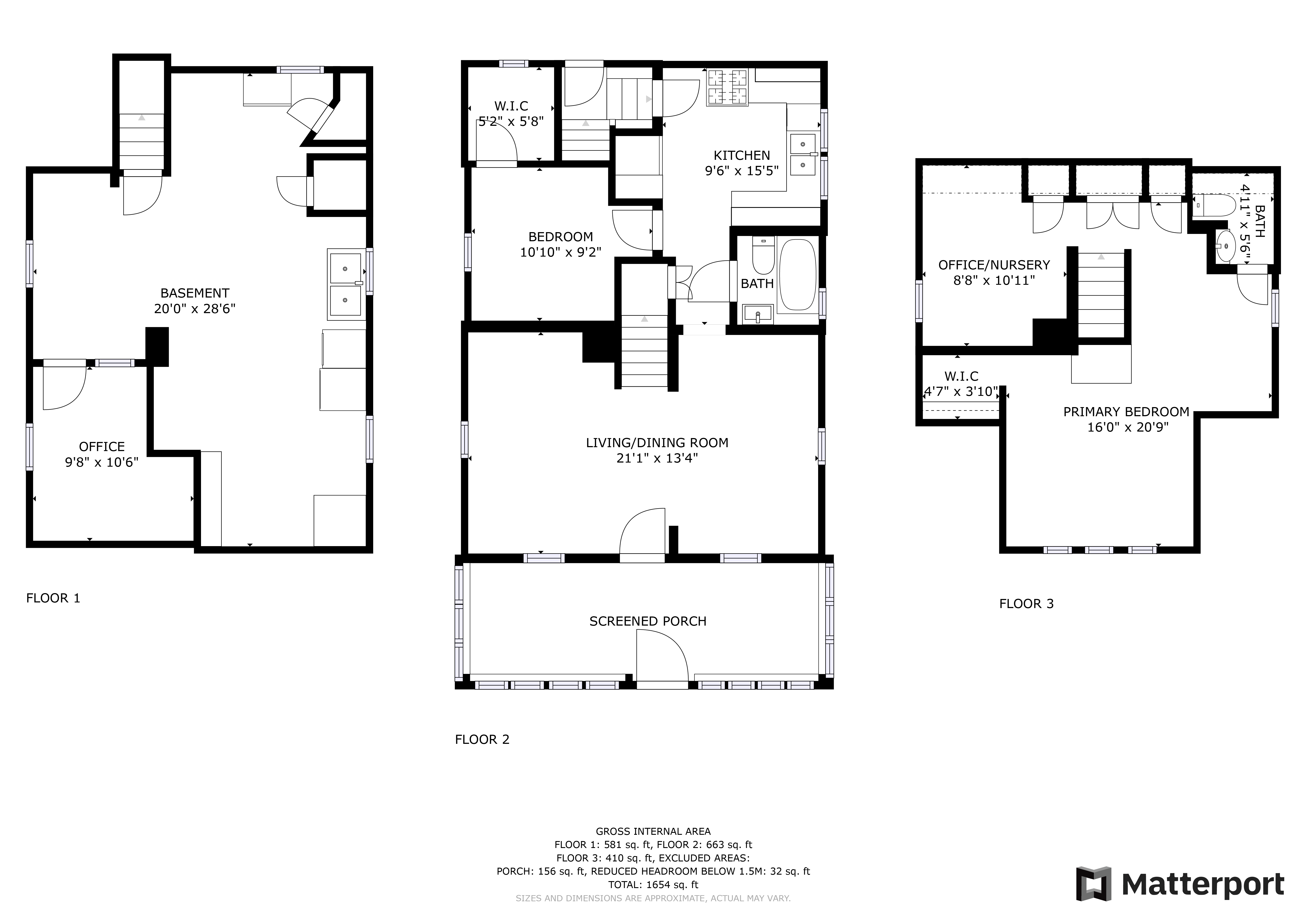
Mac Groveland one-and-a half-story tucked back on a small hill in a very walkable neighborhood with schools, parks and dining only blocks away. This home features a new roof with architectural shingles and freshly painted exterior (2020). The large front porch and back patio are perfect for spending time relaxing or gathering with friends. Original hardwood floors on both floors, a claw foot bathtub and a well laid out updated kitchen and newer range are other highlights. Rare insulated and heated 2 car garage provides room for your vehicles and hobbies. The upper floor primary bedroom has a half-bath en suite and nursery/office space (add a door for another private room). The main floor bedroom has a walk in closet large enough to bring laundry to the main from the basement. Originally a sound proofed studio, now converted to home office, in basement.

Type: 
Single Family - 1.5 Story

Bedrooms: 
2 bedroom w/ 2 office spaces

Bathrooms: 
1 Full, 1 Half

Square Feet: 
1002

Garage: 
2 car detached, insulated and heated

Price: 
$299,000

MLS: 
#5726573

School Dist.: 
625 - St. Paul

Lot Size: 
40 x 123

Year Built: 
1920



Presented By


3D Tour


Floor Plan