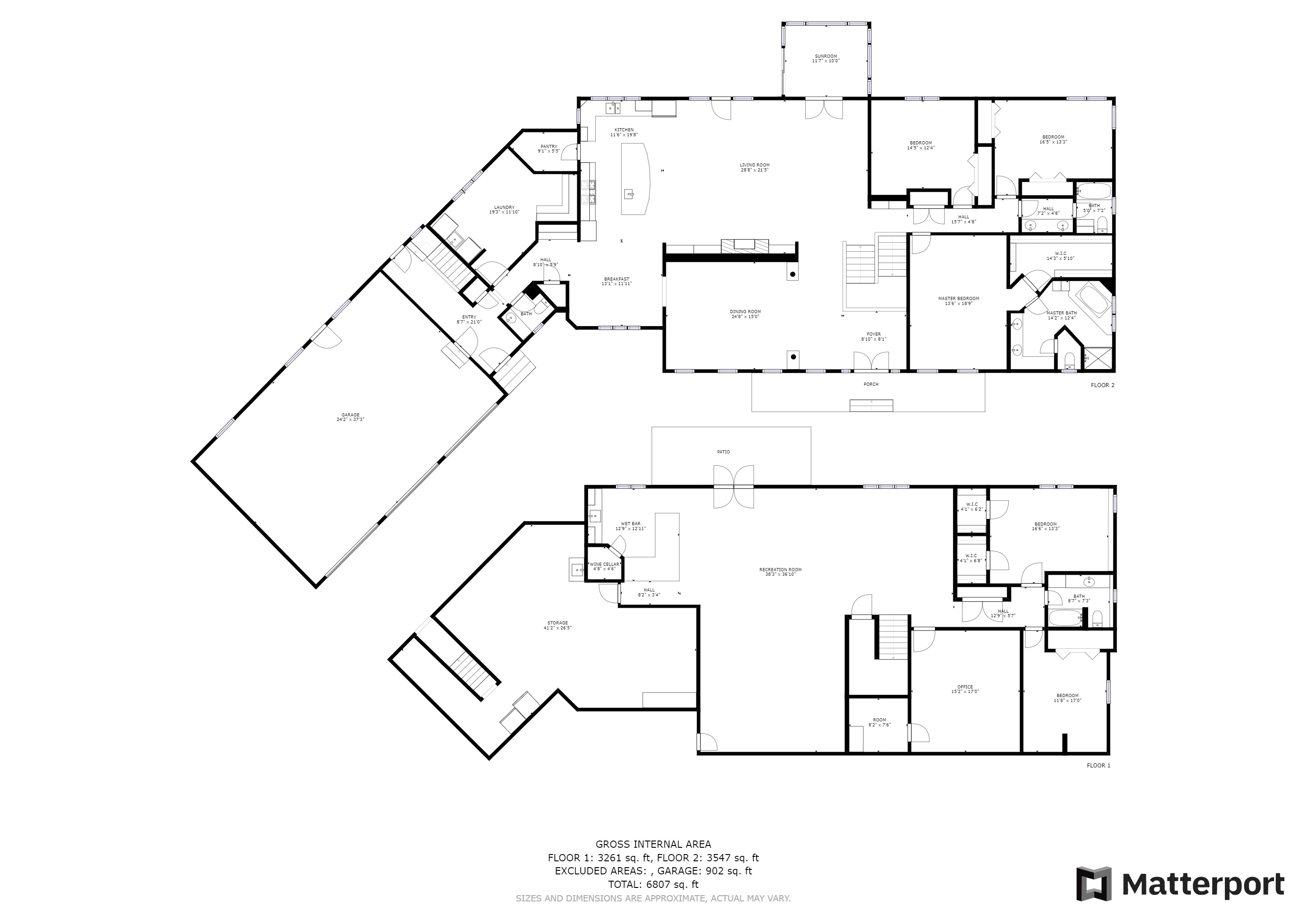
Welcome to 11426 County Rd 13 SE. This private country estate rests on 59 acres in Watertown. Enter the home through the double front doors and notice the open floor plan with views of the rolling land. The main level features beautiful craftsmanship and detail in the crown molding, well maintained hardwood floors and a spacious renovated kitchen with a walk-in pantry, Wolf range and Sub-Zero refrigerator. The main floor has 3 bedrooms including the owner's suite with ensuite bathroom and walk-in closet. Additional rooms on the main floor include a sun room with access to the maintenance free deck, informal and formal dining rooms and main floor laundry. The walkout lower level is great for entertaining. Enjoy the open concept billiards room with a full wet bar and wine cellar. There is a sizable family room and large executive office with an abundance of built-in storage. The lower level also has 2 bedrooms and a full bathroom. The property has a 2-stall horse barn with large aisle and separate hay storage area with 3 separate garage doors.
                                                Acres: 
59.87
                                            
                                                Type: 
Walkout Rambler
                                            
                                                Bedrooms: 
5
                                            
                                                Bathrooms: 
4
                                            
                                                Garage: 
3
                                            
                                                Price: 
$1,150,000
                                            
                                                Year Built: 
1980