1070 Grandview Court Northeast 104 Columbia Heights, MN 55421
Home
(current)
Gallery
3D Tour
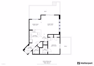
Floor Plan
1070 Grandview Court Northeast 104
Columbia Heights, MN 55421
1070 Grandview Court Northeast 104
Columbia Heights, MN 55421
Image Gallery
Play Slideshow
3D Tour
Floor Plan