Lakestyle Living

Lakestyle Living

View Gallery

Property Details

Wonderful Twin Home tucked perfectly between Gideon Bay and Echo Bay on Lake Minnetonka. Ron Clark built mature, small community of 16 units. Choice of 3 marinas to dock your boat, 2 public boat launches and a fantastic city park - Wekota, with beach, brand new play structure, tennis courts and more.

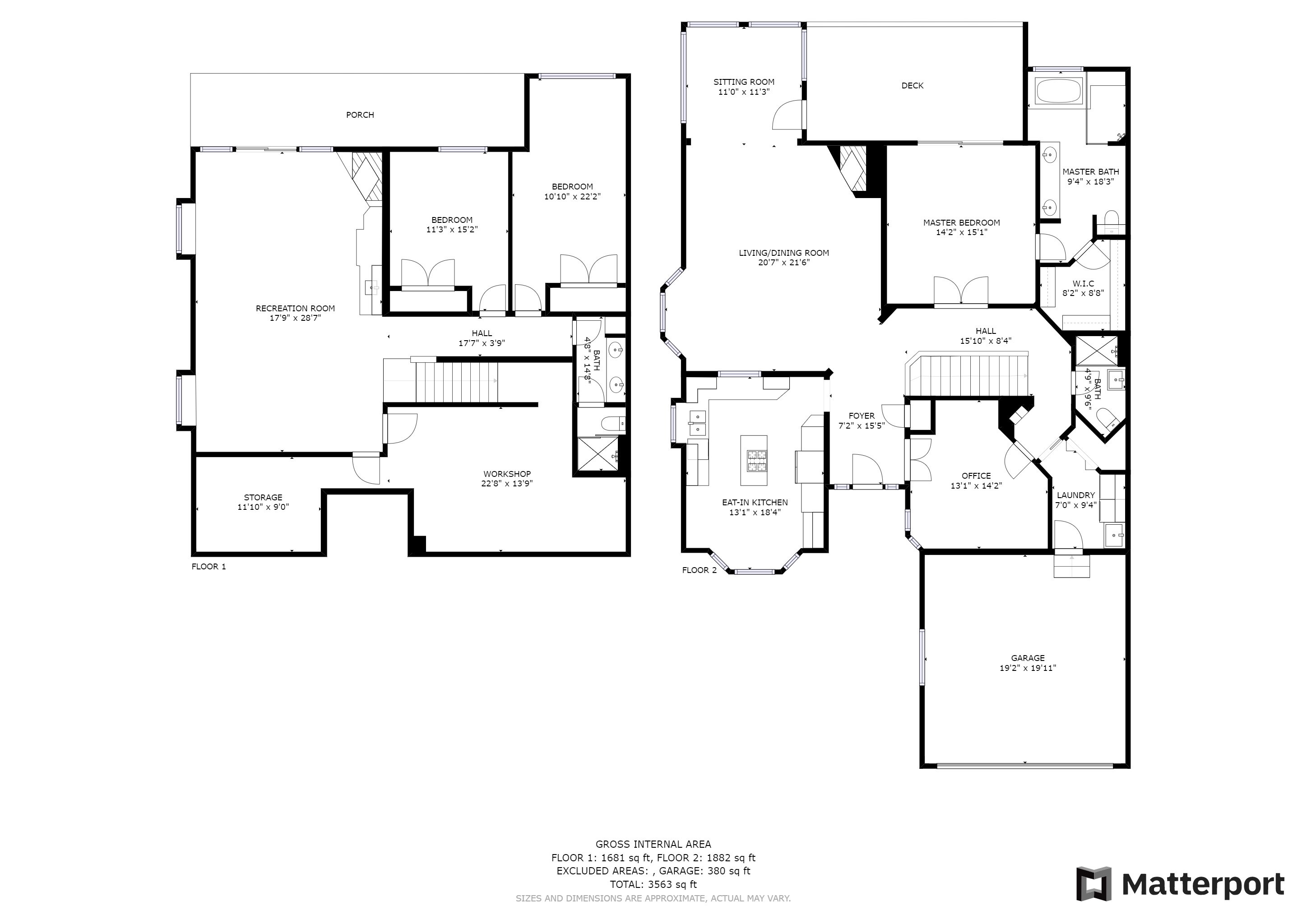
This particular home backs up to nature and pond; is very private with 3 beds and 3 baths, main floor owner's suite, and office, sunroom, brand new deck with sun awning. Living Room and Dining are open and vaulted with a cutout to the spacious kitchen. Lower Level with gas fireplace, new flooring, huge family room and recreational area along with wet bar and brand new patio. Lower level bedrooms are generously sized and share a 3/4 bathroom. You won't believe the storage in this home either; utility room plus additional storage room that is connected. Plenty of updates in this home on both levels.

Type: 
Single Family Twin Home

Bedrooms: 
3

Bathrooms: 
3

Square Feet: 
3100

Garage: 
2 Car

Price: 
$635,000

School Dist.: 
Minnetonka 276

Year Built: 
1995

Lot Size: 
.18 Acres


3D Tour


Floor Plan