521 South 7th Street #611 Minneapolis, MN 55415
Home
(current)
Gallery
3D Tour
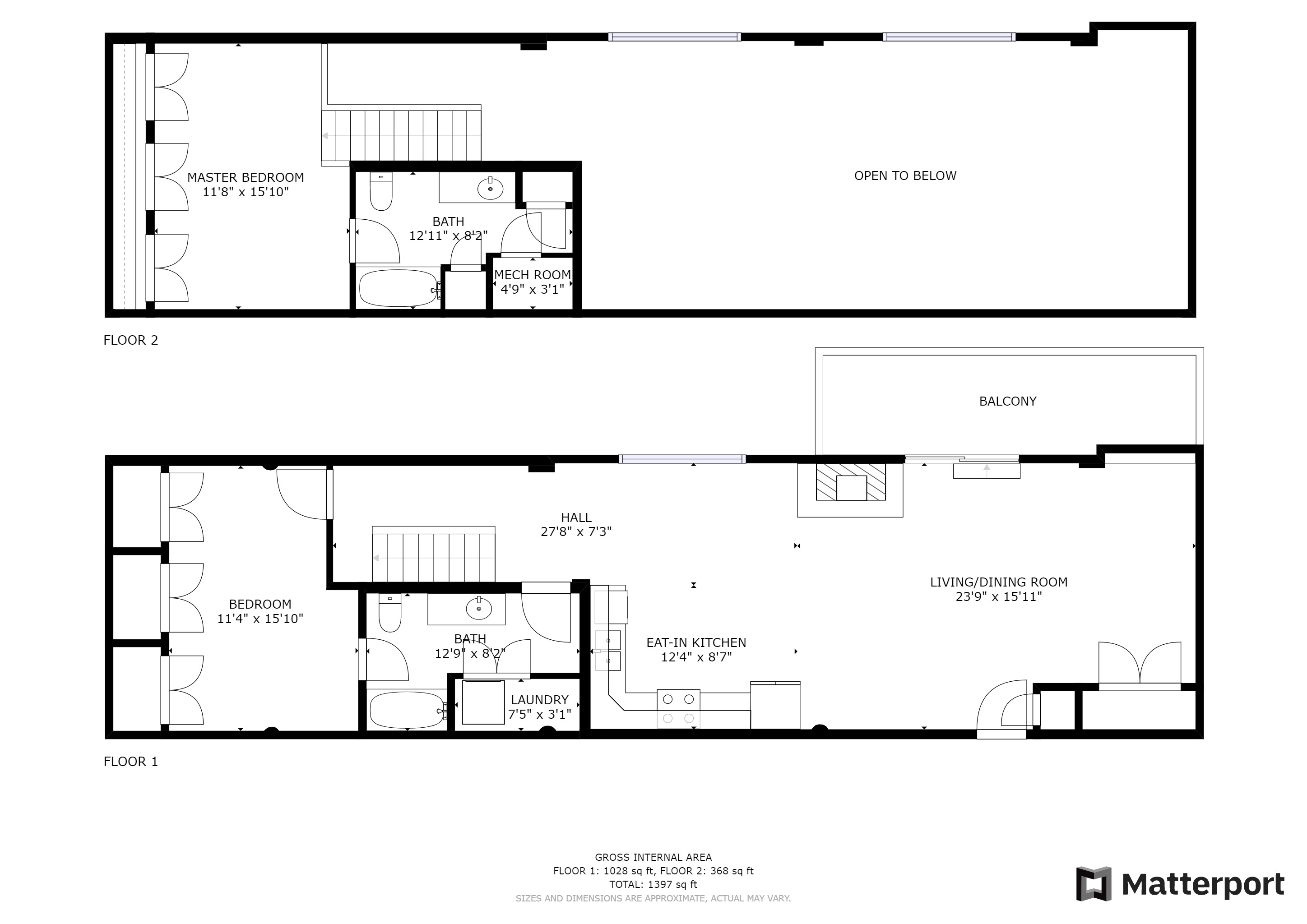
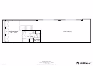
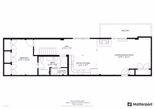
Floor Plan
521 South 7th Street #611
Minneapolis, MN 55415
521 South 7th Street #611
Minneapolis, MN 55415
Image Gallery
Play Slideshow
3D Tour
Floor Plan