2001 Glenwood Ave, Minneapolis - Duplex

2001 Glenwood Ave, Minneapolis - Duplex

View Gallery

Property Details

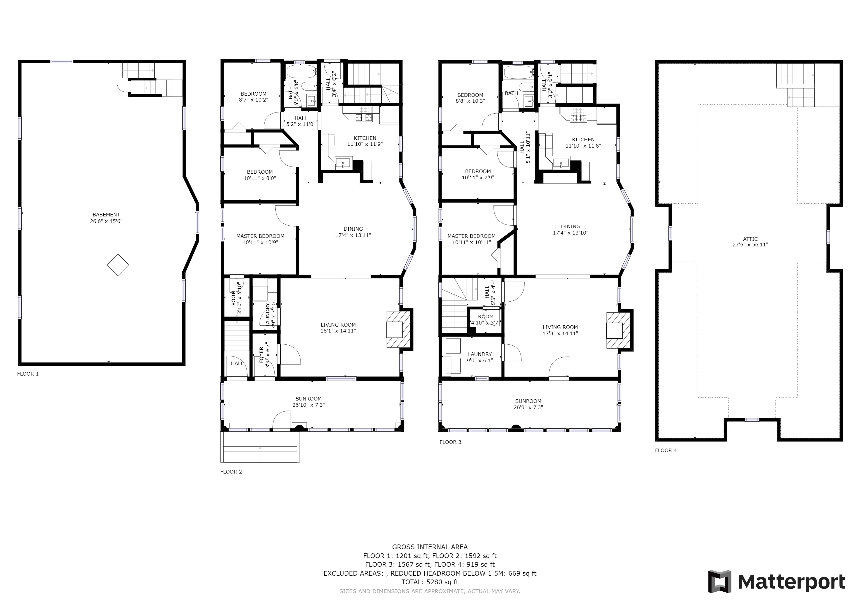
Great opportunity to owner occupy or invest in a fully rehabbed duplex with room to expand on third level with owners suite or possible third unit (check with city). Zoned Duplex-Triplex. Gutted to studs with all new insulation, plumbing, wiring, sheetrock, trim, most windows and doors. 9 foot ceilings. Beautiful hardwood floors refinished. Bathrooms added windows for natural lighting. Dining room with Built-ins. Private laundry brought into each unit. Wood burning fireplaces. Custom cabinets, granite countertops, all new appliances and water heaters. Boilers certified, cleaned, and radiators repaired as needed. Walk to downtown Farmer's Market, Theodore Wirth Park, Bryn Mawr, breweries Utepils & La Dona and more. See home highlights in supplements.

Type: 
Duplex - Up & Down

Bedrooms: 
6

Bathrooms: 
2

Square Feet: 
2636

Price: 
$450,000

MLS: 
5677456

School Dist.: 
Minneapolis

Lot Size: 
.19 Acres

Year Built: 
1910



Presented By


3D Tour


Floor Plan