1165 Sherburne Avenue
Saint Paul, MN 55104

1165 Sherburne Avenue
Saint Paul, MN 55104

View Gallery

Property Details

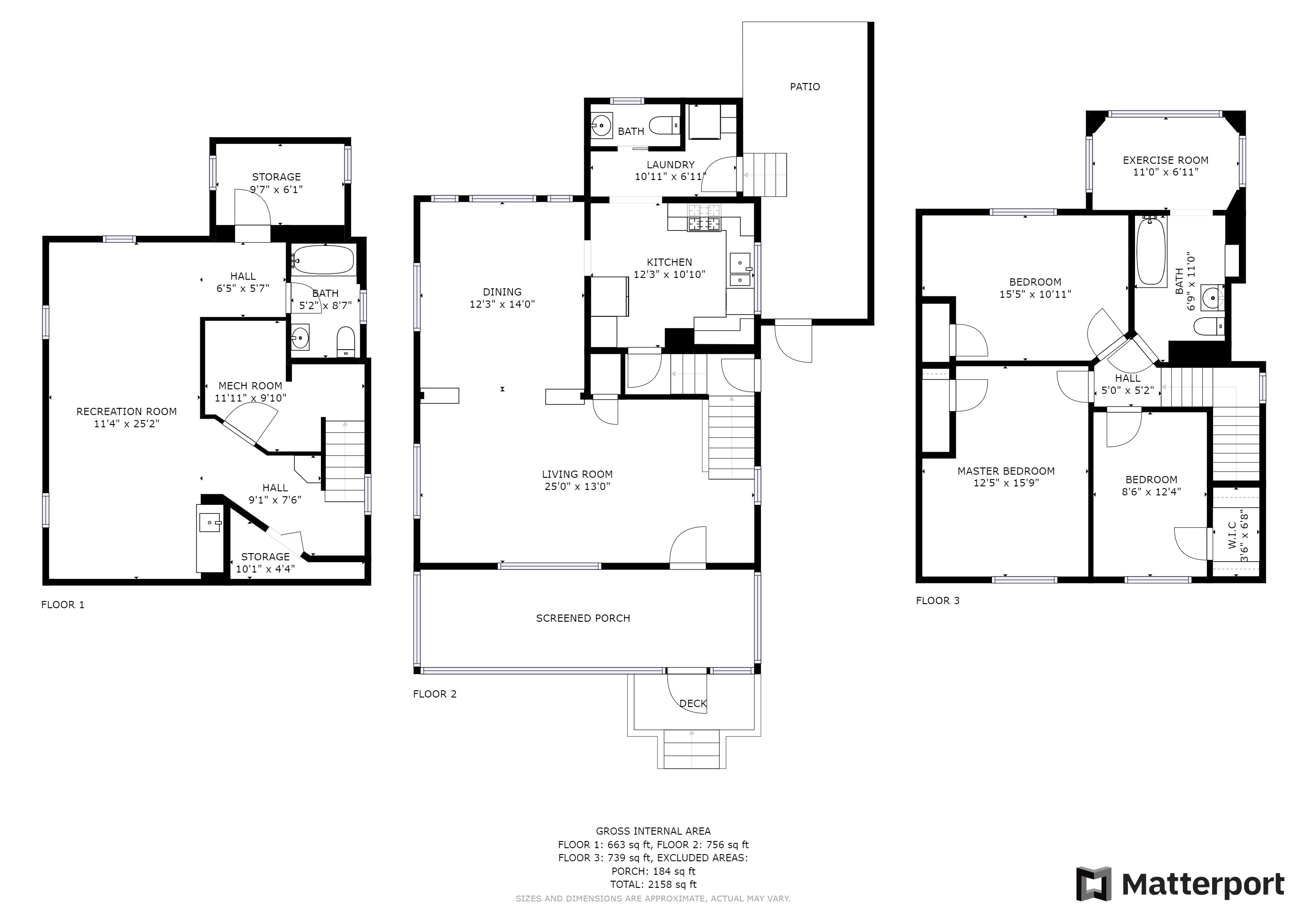
This well maintained & thoughtfully updated Hamline-Midway gem brings together the best of the old and new. The current owners added solar panels in 2017 (say goodbye to electric bills!), a ductless AC system in 2019, and completed the brand new, efficiently designed Accessory Dwelling Unit (ADU) and two-car heated garage in 2018. Both the 650 sqft ADU and finished basement provide unique long-term or short-term rental opportunities just steps from the Green Line. Outside, an urban oasis awaits with an amazing 250 sq ft deck, patio, gardening beds, and perennial fruits and flowers. A truly one-of-a-kind property!

Type: 
Single Family with Accessory Dwelling Unit (ADU)

Bedrooms: 
4

Bathrooms: 
4

Square Feet: 
2,562

Garage: 
2+

Price: 
$385,000

Lot Size: 
40x121

Year Built: 
1922 (Home) 2018 (ADU)



Presented By

Real Estate Agent Name

Jordan Schroeder

Real Estate Agent Phone

651-491-3191

Real Estate Agent Email

JordanSchroeder@gmail.com

Real Estate Agent Website

jordanschroeder.com

Real Estate Company

RE/MAX Results

View My Other Listings


3D Tour


Floor Plan