One Level South Lake Living

One Level South Lake Living

View Gallery

Property Details

This phenomenal Twin Home is tucked away just off the shores of Lake Minnetonka in Tonka Bay. Award winning Ron Clark built in 1998, delightfully warm & welcoming the second you step through the front door of this refreshed & updated main-level living home. Formal Living Room and Dining Room are open and spacious. The wonderfully bright Kitchen has been updated with all of today’s trends & conveniences. Find a spot to bask on sunny mornings in the glorious Sunroom or relax on a cold winter night in front of the gas fireplace in the Hearth Room. Main Floor Master Suite features hardwood floors & spa-like bath. Lower Level Walkout is Light & Bright. 2nd Bedroom could be 2nd Master suite! Screened Porch! 3D Tour! All the benefits of South Lake Living are within a block! Wekota Park, just steps from the home, is bubbling with sunseekers, dog walkers & great 4th of July Fireworks. 3 marinas within walking distance to slip your boat & enjoy many days cruising to Excelsior, Wayzata or beyond.

Type: 
Twin Home

Bedrooms: 
3

Bathrooms: 
3

Square Feet: 
3392

Garage: 
3 Car

Price: 
$699,900

School Dist.: 
Minnetonka 276

Lot Size: 
.15

Year Built: 
1994


3D Tour


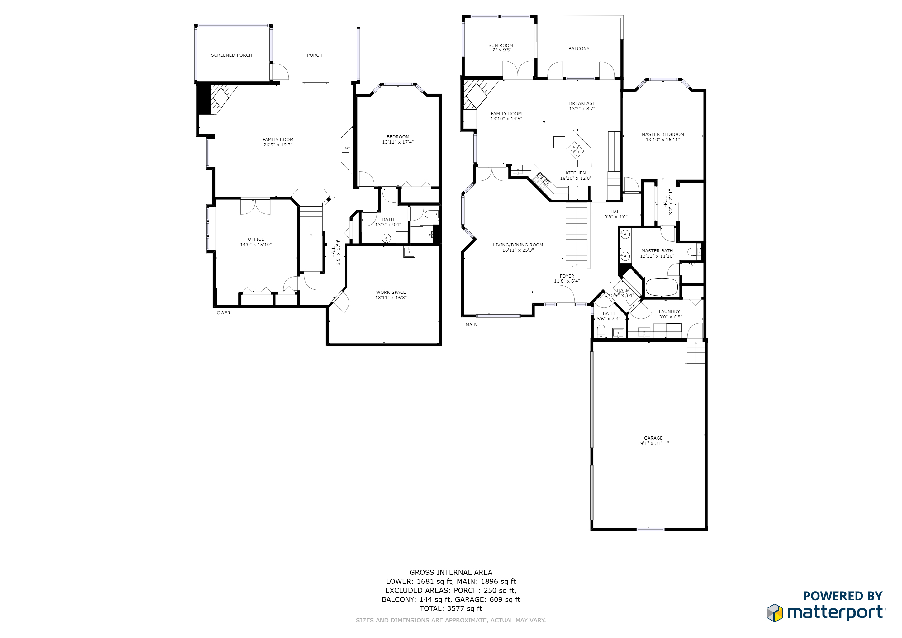
Floor Plan